Business Hotel
Status
Under Construction
Project Type
Business Hotel
Project Area
12000 Sq. Ft.
Commencement date
Ongoing
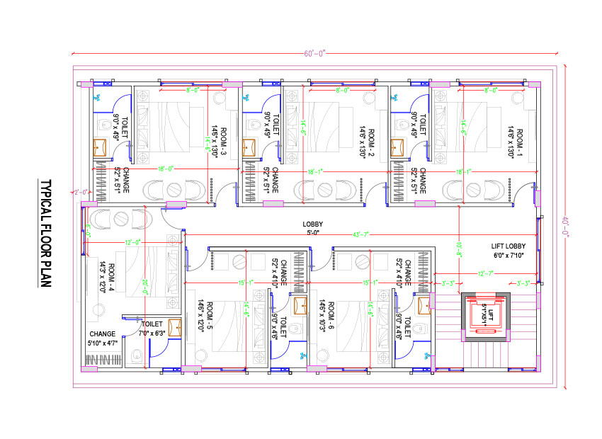
Project description
We are excited to introduce our upcoming business hotel, strategically located near Kempegowda International Airport, Bangalore. Designed to cater to the needs of business travelers, this modern commercial property will offer convenience, comfort, and seamless connectivity. Scheduled for completion in 2026, the hotel will feature well-appointed rooms, contemporary amenities, and efficient services, making it an ideal choice for professionals seeking a comfortable stay close to the airport. Stay tuned as we bring this project to life, setting a new benchmark for business accommodations in the area.
Key Details
- Location: Near Airport, KIA
- Total Built-Up Area: 2400*5 =12000 sq. ft.